The main goal for this 3,200-square-foot home, nestled in a Bay Village Neighborhood, not far from Huntington beach, was to echo the scale and proportion of its neighbors.

Long Beach Park

Bay Village, OH

Project Summary

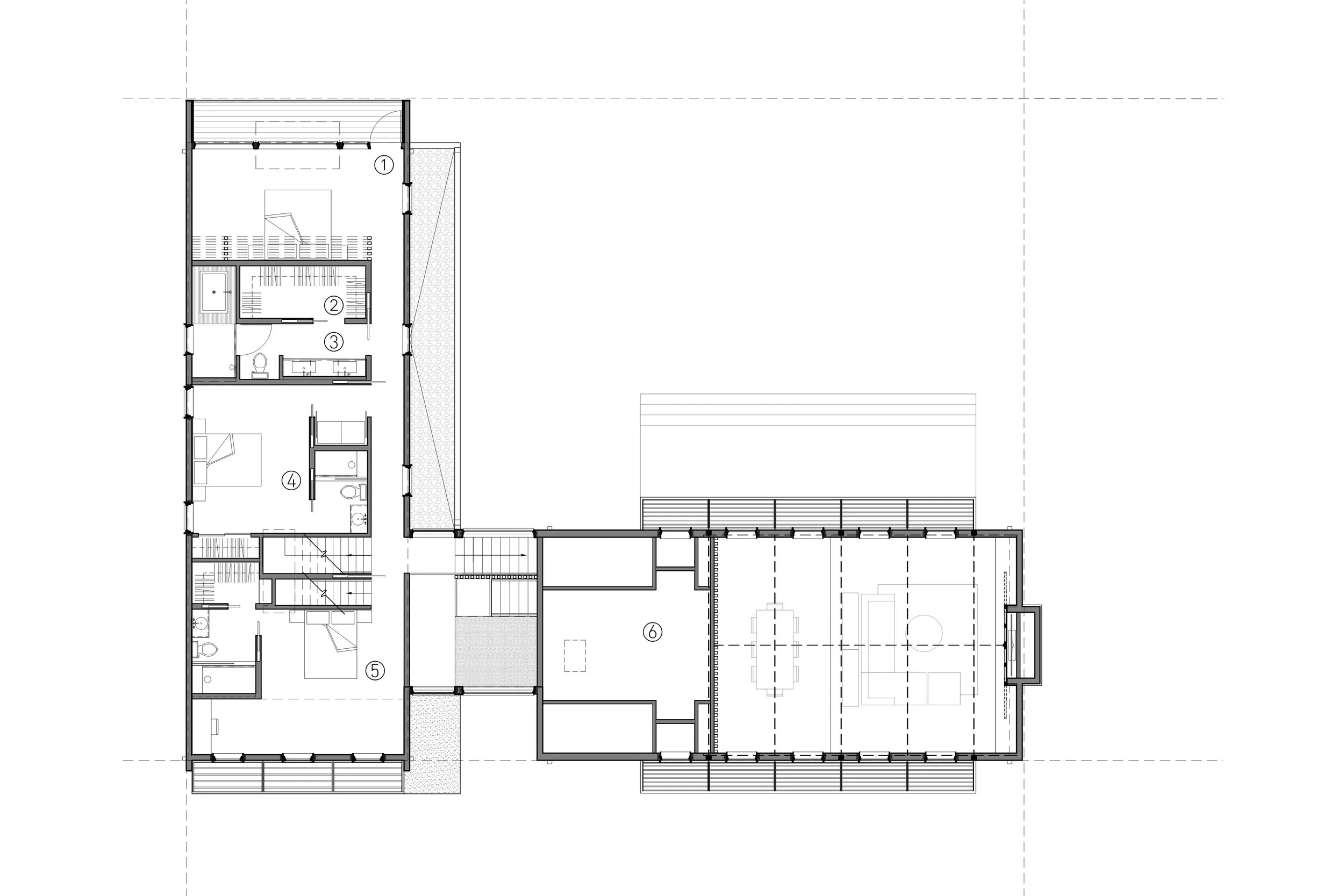
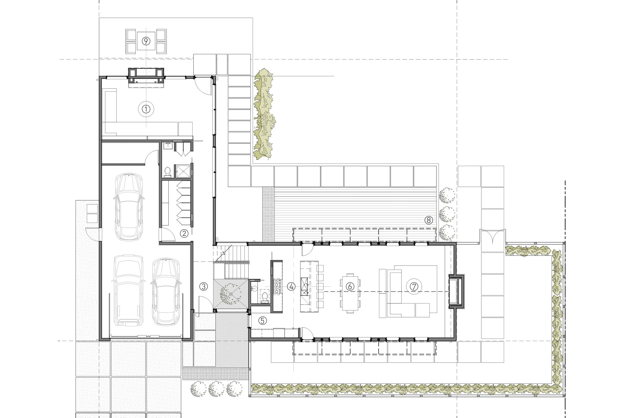
The main goal for this 3,200-square-foot home, nestled in a Bay Village Neighborhood, not far from Huntington beach, was to echo the scale and proportion of its neighbors. Since the project involved combining two lots, we used a Cape Cod shake style design, breaking the large form into smaller, cohesive sections to respectfully integrate the larger home into the existing streetscape. To organize the interior, each traditional-style section was designated for either the public or private program, and a modern glass box connecting the two main forms serves as the entry.

The entry was specifically designed to be an immersive experience. The exterior materials from the Cape Cod forms were continued seamlessly into the glass box entry, creating the feeling that you are standing in a protected space between the two buildings. Furthermore, the home features a lofted attic office, providing a dedicated and inspiring workspace for the graphic design couple who are the clients for this unique residence.

Awards

2020 AIA Ohio - Citation Award | AoDK Inc. - Visocky O'Grady Residence

2019 AlA Cleveland - Small Projects Category: Merit Award | AoDK Inc. - Visocky O'Grady Residence

Collaborators